抄作业!收纳大户的柜子,1㎡能当5㎡用


本次案例真的一波三折。设计师@漫山 接到这个设计的时候,屋主的孩子才刚刚出生几个月。结果完工后,孩子已经一岁多了。
但是这个家的设计太绝了,每一面墙都用到了极致。空间看似没咋动,实则每1㎡都是小心机,每一处都是惊喜。可谓是慢工出细活。

#全屋柜子结构图的完整清单
长按识别并添加回复【1009】
一键领取
有关设计师的问题都可以咨询糖糖!
# 先 睹 为 快
房屋信息
户型: 三居室
面积: 90㎡
房屋位置: 重庆市
预算: 45w
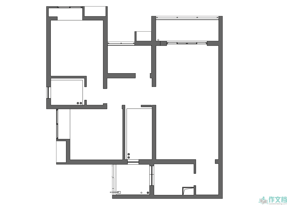
-户型图-

原始结构户型是比较普通的三室一厅,玄关餐厅客厅阳台在一条线上,厨房比较小,小卧室的面积也比较小。

▲全屋拆建墙的过程(没有拆承重墙哦)

黄色部分:用于收纳的各种柜体的固定家具
白色部分:活动家具
绿色部分:电器





客厅电视墙方向满满一笔的柜子,一直延伸到餐厅。 (柜子细节图文末一键领取)


▲小朋友看动画片看得可入神了



#全屋柜子结构图的完整清单
长按识别并添加回复【1009】
免费领取!
有关设计师的问题都可以咨询糖糖!

▲从玄关看厨房,厨房自然光的样子







▲隐墙床示意动图

#全屋柜子结构图的完整清单
长按识别添加后回复【1009】
免费领取!
有关设计师的问题都可以咨询糖糖!
抄作业!收纳大户的柜子,1㎡能当5㎡用(附尺寸)
28㎡小家住4口人,不拥挤还显敞亮!这招偷面积开挂了
手把手教你柜子收纳,让家实用又显大
抄作业!收纳大户的柜子,1㎡能当5㎡用相关文章:
★ 娘家的故事1剧情
